Radim Razzak Son Xigala Finca

Son Xigala Finca

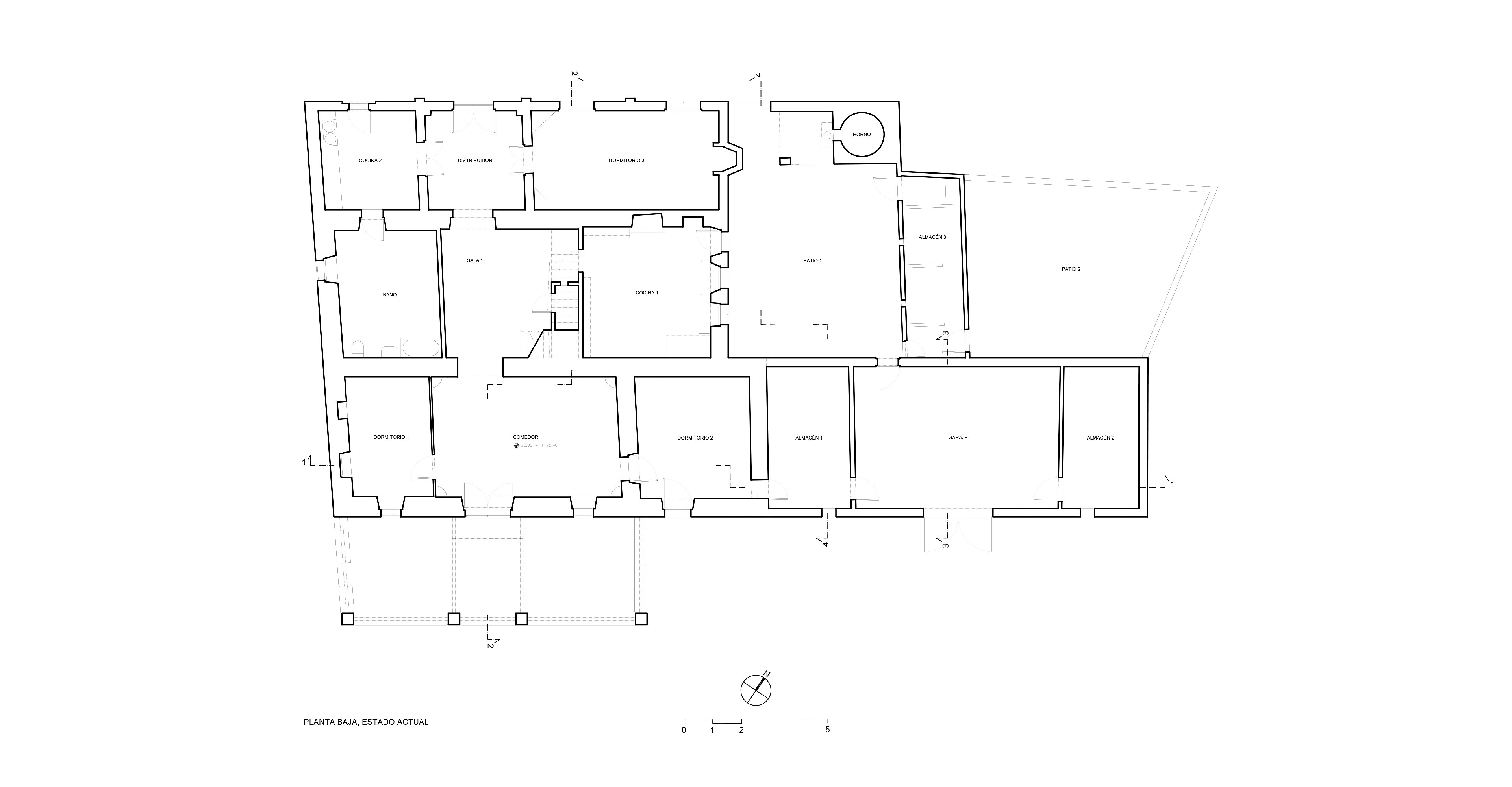
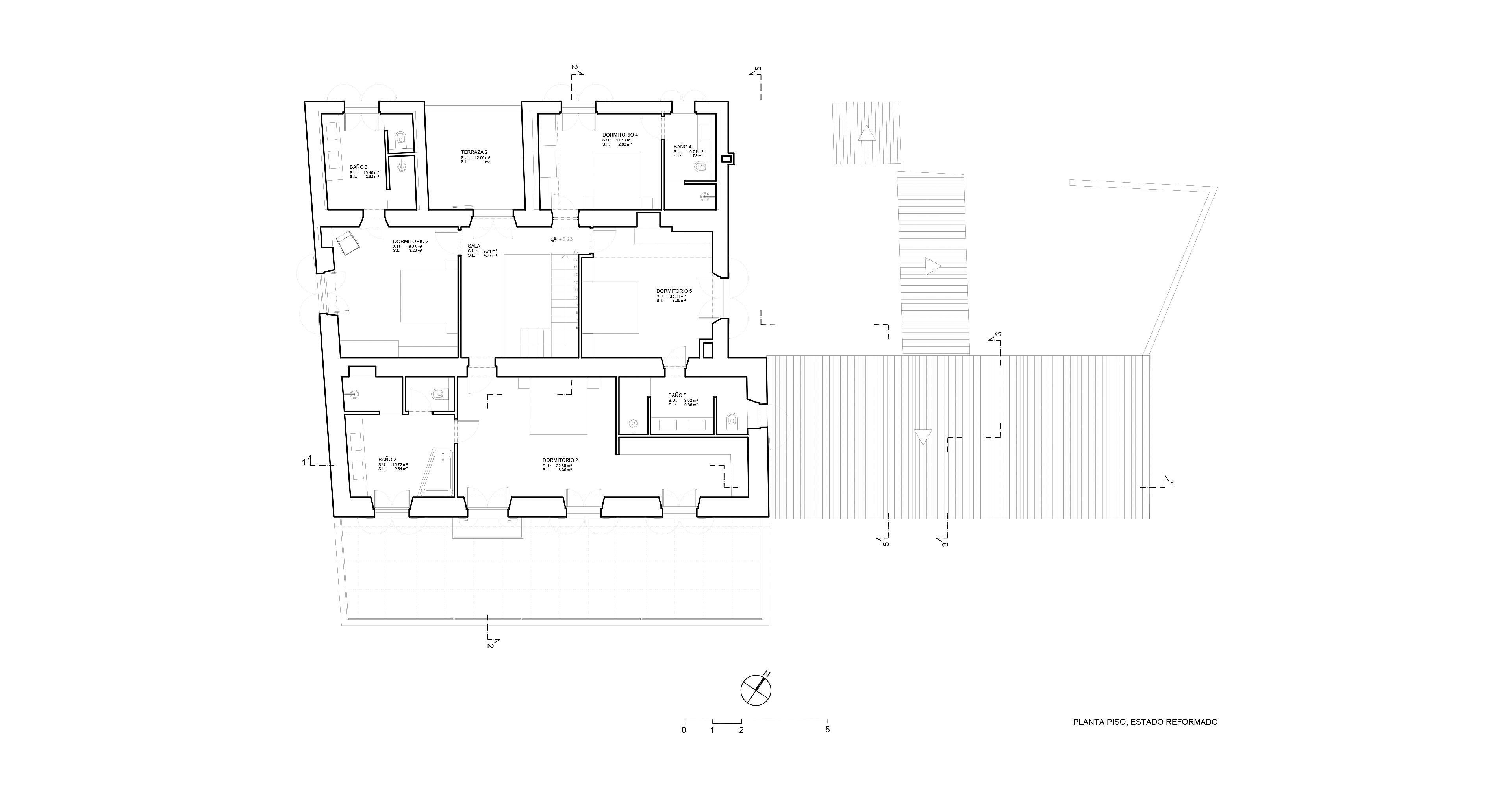
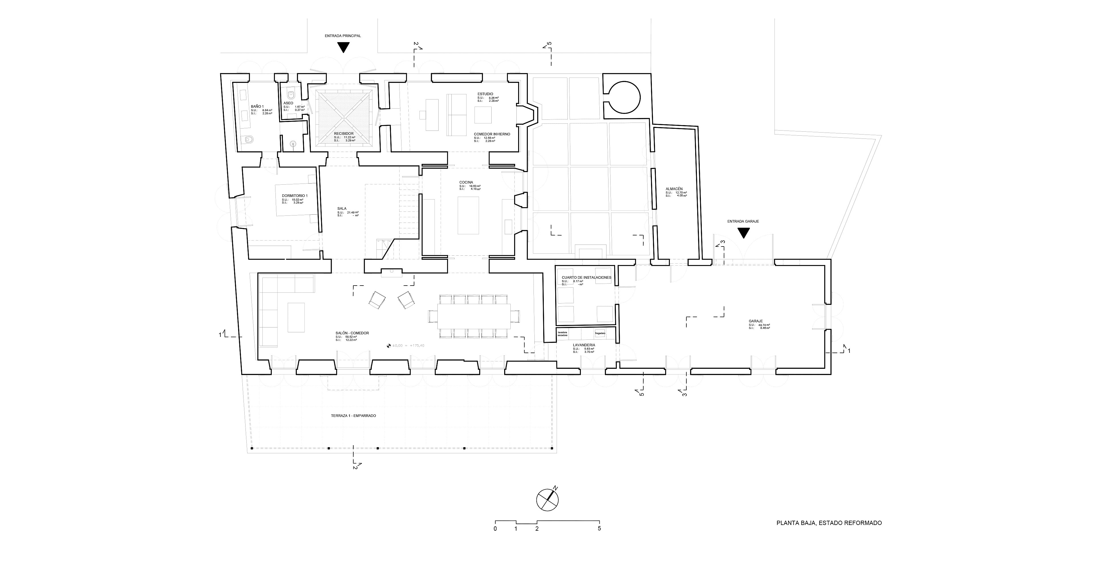
A reconstruction project for an old rustic finca from the 19th century in Algaida. Currently under construction.

Location:
Algaida
Year:
2022
Gross Floor Area:
520.00
Plot Area:
180000.00
Services:
Architectural project, Interior design, project management & site management
Radim Razzak Son Xigala Finca
Radim Razzak Son Xigala Finca
Radim Razzak Son Xigala Finca
Radim Razzak Son Xigala Finca
Radim Razzak Son Xigala Finca
Radim Razzak Son Xigala Finca
SHARE:

© 3de.studio