Radim Razzak Indalecio apartment

Indalecio apartment

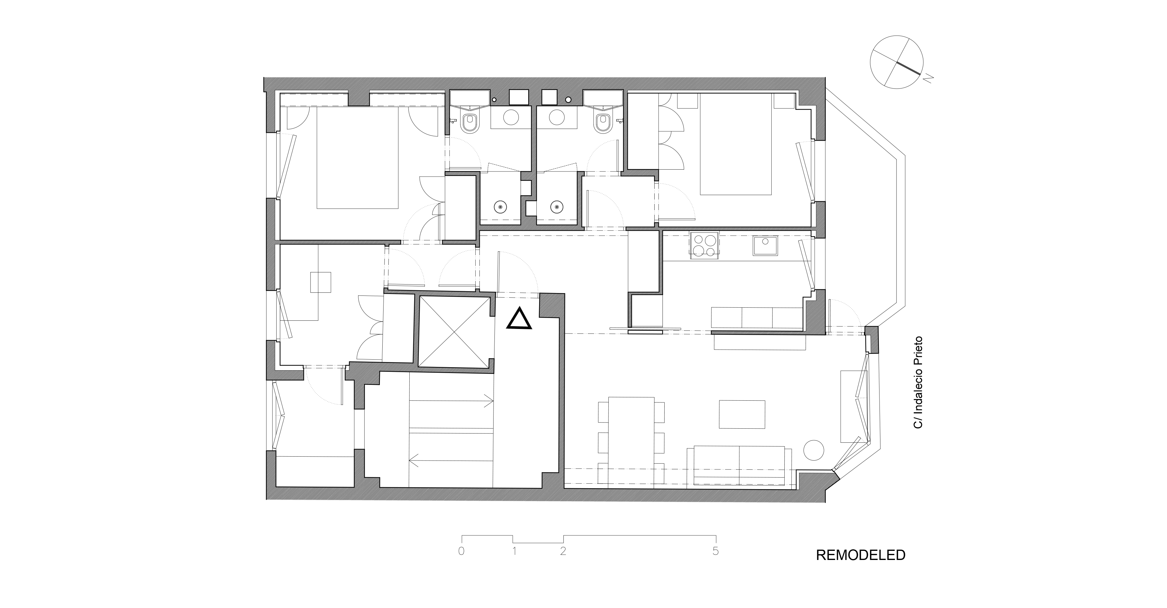
A reconstruction project for an old apartment from the 1970s in the Son Gotleu district.

Services:
Architectural project, Interior design, project management & site management
Radim Razzak Indalecio apartment
Radim Razzak Indalecio apartment
Radim Razzak Indalecio apartment
Radim Razzak Indalecio apartment
Radim Razzak Indalecio apartment
Radim Razzak Indalecio apartment
SHARE:

© 3de.studio