
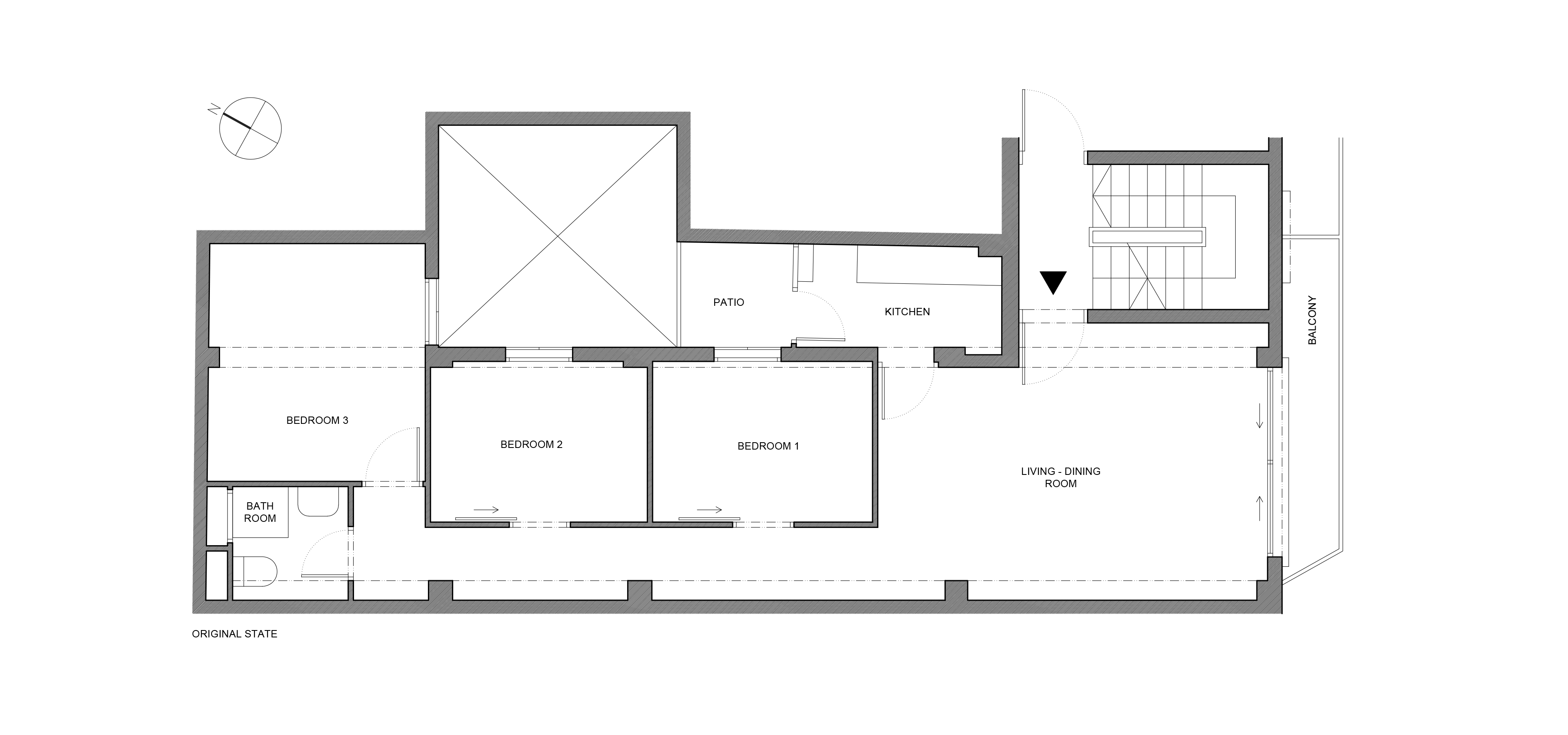
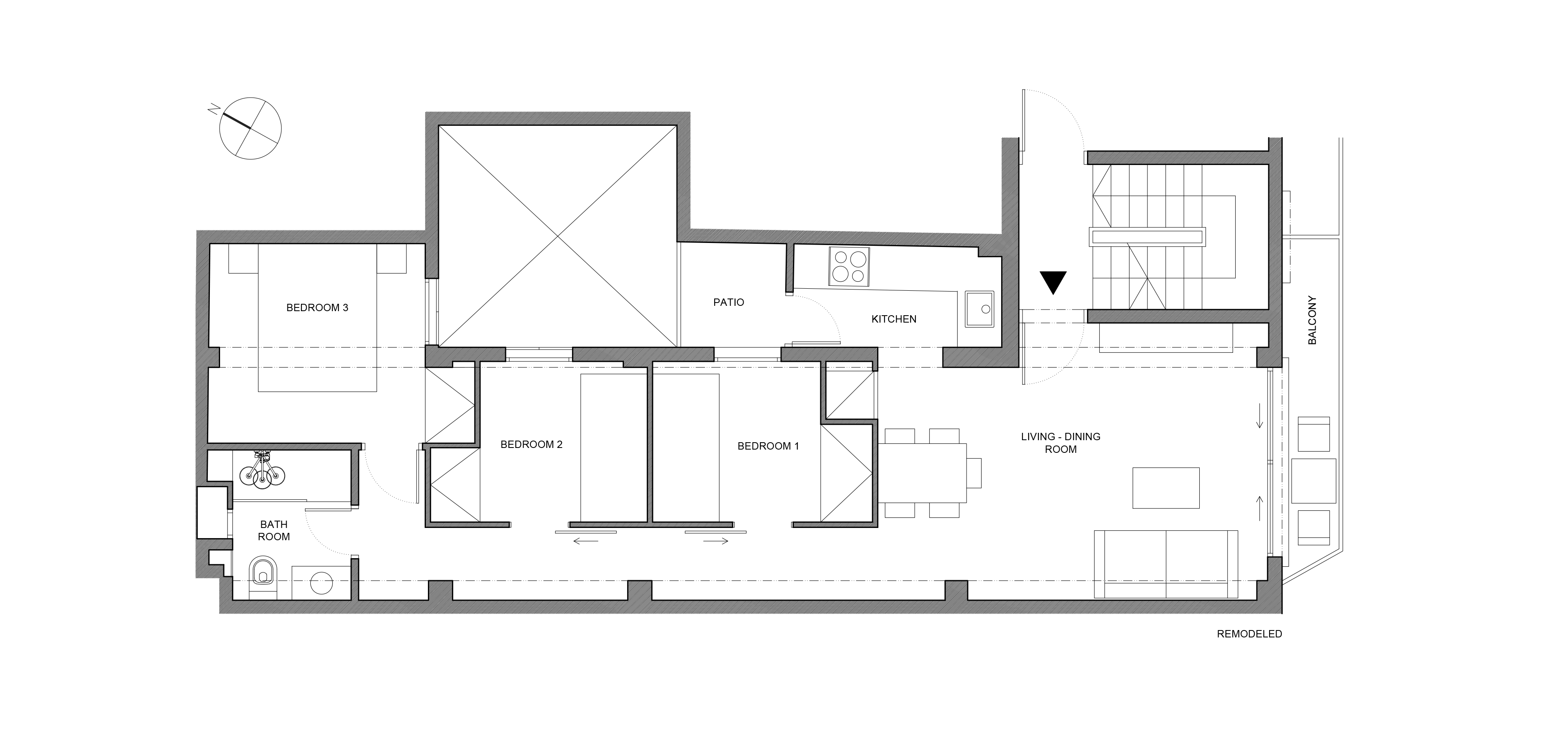
Porto Cristo Apartment
In the center of Porto Cristo, literally just a few steps from the harbor, is one of the vintage treasures of the 1960s, which was given a facelift. Tailored to a tee for tourist rental, this apartment has been carefully redesigned, keeping guest comfort in mind within a controlled budget. With a commitment to keeping things simple and practical, the updated design effortlessly merges the modern aesthetics with the timeless allure of its era.

